Welcome to our Lane Cove News Week In Review.
Lane Cove Rotary Fair & Sustainability Lane Wrap Up
Sunday was a big day in Lane Cove with one of the community’s most loved events, the Lane Cove Rotary Fair and Sustainability Lane taking place.
Over 18,000 people packed the Lane Cove Village on a beautiful October day. It was a hot one with a slight breeze, which turned into strong winds and rain. Luckily, the rain was right at the end of the day, near pack-up time.
Locals and visitors were treated to music, rides, wildlife, markets and information stalls galore.
Read the full wrap up including stats here.

Lane Cove Number One Most Liveable Community
With a place experience score of 80 out of 100, Lane Cove has topped the 2025 Australian Liveability Census. This score is well above the national and state averages of 66.
Every two years, Place Score conducts the Australian Liveability Census. It’s an Australian-wide survey with data mostly derived from an online survey aimed at understanding what people value in their neighbourhoods and how well their local areas are delivering on those values.
From the data, a liveability score (or place experience score) is calculated for local government areas (some local government areas may not receive a score if their response rate is low).
Place Score Census collects social data using a human-centric approach. It does not include objective factors such as crime statistics, health system data, or economic data.
Read all about it here.
Australian Defence Force Helicopter Training
Australian Defence Force (ADF) helicopters will be conducting aviation training across the Greater Sydney region, Wollongong and Goulburn periodically from 13 October 2025 to 8 November 2025.
Training occurs throughout the day and night, involving responses to simulated threat scenarios. Our armed services need to train under various conditions.
Over the years, ITC roving reporters have captured the training drills on video, and the video below is from 2018. They do fly very low and can rattle windows, and training can take place in the early hours.
Due to the nature of this sort of training, specific dates, times and locations are unavailable. The schedule is subject to change, including short-notice cancellation, due to variables such as air traffic control, weather and other aviation considerations.
No live ammunition will be used during the training.
ADF has advised:
“Safety, noise management and the environment are vital considerations in the planning and conduct of Defence flying activities.
Noise disturbances will be minimised where possible and the ADF thanks the public for their patience and cooperation.
Members of the public can access further information regarding aircraft noise at Aircraft noise | About | Defence, or by calling 1800 033 200.”
Potholes
The NSW Government has announced it will be fast-tracking $200 million to deliver a pothole and road maintenance blitz across Sydney’s busiest corridors, following one of the city’s wettest winters on record.
More than 5,100 potholes have already been repaired across Sydney’s roads in August and September alone.
Work under this program will be prioritised based on:
- traffic volumes
- the location and severity of the pothole, and
- the road’s importance for freight, bus services, and emergency access.
Around 15 per cent of pothole repairs are identified through public reports, which can be made to Transport for NSW:
Online: Link Here
Phone: 131 700
The State Government is responsible for repairing state roads. In the Lane Cove Council area, these roads are state roads and should be reported as per above:
- Epping Road
- Longueville Rd between Pacific Hwy and Epping Rd
- Pacific Hwy
- Centennial Ave between Epping Road and Burns Bay Rd
- Burns Bay Rd between Centennial Avenue and Figtree Bridge
For all other roads in the Lane Cove LGA, report them to the Lane Cove Council via this link.
New Data Centre Approved for Lane Cove West Business Park
The NSW State Government has approved a new AirTrunk 45 MW data centre in the Lane Cove West Business Park on Apollo Place.
It will be located next to the existing 120 MW AirTrunk hyperscale campus (which has 24 data halls) on Sirius Road Lane Cove West Business Park.
The new development will have four data halls.
The Sydney Water works, ongoing for months in Lane Cove West, are intended to support AirTrunk’s operations, as data centres require water for cooling. Read more about the works here.
Below is an artist’s impression of how the new data centre will look next to the existing data centre (image source: NSW Planning Major Projects Portal – Greenbox Architecture)
The second photo is the existing AirTrunk facility as seen from Magdala Park, North Ryde.
Lane Cove Local Kersh Sivakumaran Wins 2025 Sydney Fringe Festival Awards
Congratulations to Lane Cove local Kersh Sivakumaran for being the creative force behind And What Will People Say. The production has won the 2025 Sydney Fringe Festival Best In Spoken Word and Storytelling award.
Kersh is the founder of Behind Closed Doors Theatre (BCD Theatre), a performance organisation dedicated to sharing the stories of diverse and marginalised communities in Australia. Behind Closed Doors was awarded the Best Emerging Producer.
And What Will People Say? is a 60-minute immersive experience sharing the lesser-heard story of women staying for the sake of their children in cases of domestic violence. The performance explored the topic while combining the artist’s speciality in Indian classical dance, music and spoken word.
Find out more about Kersh, And What Will People Say? in our article we published during the Fringe Festival.
It’s great to be able to shine a light on local creatives.
Read more here

Large Parcel of Land for Sale in Lane Cove West Business Park
Looking for some industrial/warehouse land near Lane Cove? 25-27 Sirius Road, Lane Cove, located in the Lane Cove Business Park, is for sale by expression of interest.
The land area is .84 hectares or 2.07 acres. One building is tenanted until 2028 with an option to extend for five years. The listing agent is Stanton Hillier Parker.
The agents have listed the following potential parties who may be interested:
- value-add investors
- developers
- owner-occupiers
- showroom users
- data centre/IT related businesses
- self-storage operators
- life sciences/health sector
The listing notes:
“Major stock withdrawal resulting from data-centre development in Lane Cove West and Macquarie Park, in addition to significant BTR and BTS residential schemes across the north shore will drive rental growth and demand for industrial real estate in Lane Cove West.”
The properties are offered for sale in-one-line via Expressions of Interest (EOI) closing Thursday 13th November 2025 at 4PM
You can view the listing here.

Become a Citizen Scientist
Only a couple of days to go before Australia’s favourite citizen science event. The official Bird Counting Week is from the 20th to 26th October 2025.
The Aussie Bird Count is a national celebration of our diverse birdlife, featuring magpies, fairy-wrens, cockatoos, curlews, and honeyeaters. The 2025 Aussie Bird Count is taking flight for its 12th year.
This is your chance to help record the number of birds in Lane Cove. Anyone can be involved.
Last year, the bold adaptable species – the Rainbow Lorikeet, Noisy Miner, and Australian Magpie – again topped the charts. Will they swoop in for the top three once more in 2025?
Why not make it a family affair? You can count as many times as you like over the week, as long as the count is 20 minutes long.
Get your family and friends together and head off into the great outdoors.
Here are details on how you or your family can get involved.

Have Your Say Dunois Reserve and Waterfront
Lane Cove Council have opened consultation on the draft design proposal for Dunois Reserve and its waterfront. This followed earlier consultation, inviting survey responses and written submissions on what the community views as necessary in this area.
The waterfront area is an ecologically sensitive and endangered salt marsh and Estuarine Swamp Oak Forest. Human activity from walking on these areas and the number of dinghies and kayaks stored on the foreshore are impacting the fragile ecosystem.
The draft proposal seeks to balance the environmental and community needs.
The community can submit feedback via an online survey or a written submission. Background and survey link here.
Written submission to the General Manager can be made by quoting SU10620 by Email OR Post: Lane Cove Council, PO BOX 20, LANE COVE, NSW, 1595
Submissions close Tuesday, 18 November 2025.

Business Alert
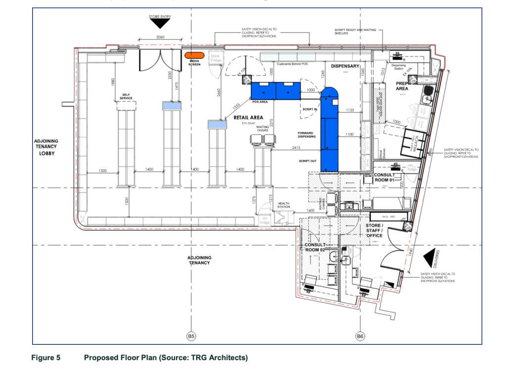
Longueville Chemist Pty Ltd has lodged a Development Application (DA126/2025) to operate a chemist within the Pathways Aged Care Development at Northwood (across the road from The Diddy).
The company behind the proposal is owned by Kieran Baker, who also owns the Birkenhead Point Pharmacy.
If approved, the new chemist would serve both residents of the Pathways Aged Care facility and the wider Northwood and Lane Cove community.
The traffic report accompanying the development application was prepared in 2020 for the Pathways Longueville Development.


Upcoming Lane Cove Events
Celebrate Grandparents At Lane Cove Libraries
Grandparents Day is coming up on Sunday 26th October 2025. To help recognise the wonderful role grandparents play in our families and communities, Lane Cove Libraries are offering the following FREE events. Bookings not required.
Grandparents Storytime
Come to Storytime at local libraries to read books about grandparents, sing songs and celebrate your grandparents. Invite grandparents to come along and share special time with their grandchild or borrow a book to share with them at home.
Monday 20th: Greenwich Library. Ages 0-6. 11 am – 11.30 am
Wednesday 21st: The Yarn, Hunters Hill. Ages 3-6. 11 am – 11.30 am
Thursday 22nd: Lane Cove Library & St Leonards Library. Ages 3-6. 11 am – 11.30 am
Thank You Craft
Drop-in and create a special thank-you card for your grandparents in celebration of Grandparents Day! Let your grandparents know how important they are to you with this crafty afternoon activity.
When: Friday 24 October 3 pm – 4 pm
Where: Lane Cove, St Leonards and The YARN, Hunters Hill Libraries.
Small Business Month Event: AI DOJO – Find Your Mojo with AI
To mark Small Business Month Lane Cove Council is facilitating a FREE breakfast session designed for Lane Cove small businesses. Special guests Audacity Innovations will share simple, practical ways AI can save you time, spark creativity, and help your business grow.
When: Friday 24 October
Time: 7:30 am – 9:30 am
Where: Pottery Lane Performance Space
How: Bookings essential.

Sailor Makenzie Mayne A National Finalist
In recent weeks, we covered the news that local sailor Mackenzie Mayne had been awarded the NSW/ACT Instructor of the Year Award at the 2025 NSW Sailing Awards.
Mackenzie is now one of three national finalists in the category. She is a member of the Lane Cove 12ft Sailing Skiff Club.
The national sailing awards recognise the most outstanding performances from Australia’s sailors as well as acknowledge the sport’s clubs and volunteers across 15 award categories. The 2025 winners will be announced at the Australian National Maritime Museum on Friday 14 November 2025.
Good luck Makenzie!

Vale Saxon White: Wallaby & Lane Cove Rugby Union Club Old Boy
Emeritus Professor of Medicine at the University of Newcastle, Wallaby and Lane Cove Rugby Union Old Boy Saxon White has died aged 91.
In The Cove received the following tribute from Lane Cove Old Ignatians Rugby Union Club President Robert Ward:
“It is with great sadness we advise of the death of esteemed Wallaby, Sydney University and Lane Cove Rugby Union old boy Saxon White, 9 March 1934 – 7 October 2025
Saxon played seven Tests for the Wallabies and toured the UK with the 1957-58 Wallabies alongside his friend, former LCRU Junior and Gordon player, the late KEN YANZ.
Saxon was a young resident at RNS hospital, living locally, after his Wallaby career when great friend and LCRU colleague Dr Brian Yeo suggested a stint with LCRU’s Burke Cup side would help him retain a level of fitness.
A great rugby man, Saxon retained a close relationship and many friends from the Wallabies, Sydney University and Lane Cove Rugby.
He attended many LCRU reunions, once as guest speaker interviewed by Norm Tasker and also for the official unveiling of the LCRU Trophy Cabinet at The Diddy
An absolute gentleman, with great wisdom, humility and a real affection for his Rugby friendships and memories he will be mourned and missed by his family and all who had the great pleasure of enjoying his company.
May he rest in peace.”
Following his Rugby career Professor White worked across multiple hospitals and universities, specialising in coronary health through practice, research and teaching. He was a strong advocate for community health education and programs. Professor White maintained an interest in professional sport and the associated medical background of performance, and was instrumental in the set up and oversight of the Hunter Academy of Sport.

Free Hockey Clinics
Ryde Hunters Hill Hockey Club is running a FREE Junior player Summer Clinic. This is a great opportunity for players – or those interested to try the sport – to learn and develop skills over four sessions.
Where: Keith Thompson Hockey Centre, 18 Waterloo Road, Macquarie Park
When: Fridays, 14th, 21st, 28th November & 5th December.
Time: 5.30 pm – 7 pm
How: Contact the Club to register your interest.
Incident Report
It has been a windy week, and there have been lots of small branches on the roads. On 11th October 2025, a branch came down on this car parked on Mowbray Road, Lane Cove North, towards the Pacific Highway. The SES and emergency services were on-site to help remove the branch.
This Week in Review is proudly sponsored by Sydney Speech Clinic – Individual and Group Programmes
Speech Pathologists and Occupational Therapists are professionally trained to assess, diagnose and treat a wide range of developmental differences and ultimately aim to help individuals in their daily activities, relationships and communication skills.
Sydney Speech Clinic offers Individualised 1:1 Therapy and Group Programs in order to support clients in working towards their goals. Individual sessions are highly tailored to each person’s specific goals whilst group sessions promote peer learning in an interactive, motivating and supportive group environment. They currently have 1:1 therapy appointments and group programs available for Term 3 at certain times.
Group programs are designed to supplement a child’s learning in other environments by building on existing skills and allowing for generalisation across situations. Most importantly, these groups encourage the children in the group to learn from one another. Sydney Speech Clinic often finds that children thrive in this group setting, and emerge feeling more confident and empowered. Group programs offer a reliable and affordable way of maximising your child’s exposure to learning.
All services are evidence-based, and carefully planned and facilitated by qualified speech pathologists and/or occupational therapists.
More information here
📍 1 Pottery Lane, Lane Cove NSW 2066
☎️ (02) 8404 0715
🌐 sydneyspeechclinic.com.au
If You Buy Us A Coffee, it is, in fact, helping to pay the ITC Team
We want to clarify that, yes, the ITC team does support local businesses by drinking coffee, but there is a limit to the number of cups you can drink in a day.
We started the Buy Us A Coffee Campaign as a way to keep local news free and to grow our team. Our team is now comprised of three local mums who work part-time to bring you all the up-to-date news, traffic alerts, incidents, and events. We also now have Walkley Award Nominee Jack Kelly writing articles for us, as well as founder Jacky Barker. We truly appreciate any help you can provide, whether large or small.
How local journalism keeps communities engaged
Local newsrooms play a vital role in keeping communities informed and engaged with the decisions that affect them. Without dedicated coverage of local government, infrastructure, and policy changes, many residents are left uninformed about issues that significantly impact their daily lives. Independent newsrooms help bridge this gap, providing a trusted source of information and giving people a platform to voice concerns. Strong local reporting doesn’t just inform, it fosters public participation and strengthens civic engagement. – extract from the Local and Independent News Association Website
















